Trilocale in vendita in via della Pisana, 401 Roma
Trilocale in vendita in via della Pisana, 401 Roma APPARTAMENTO…
€199.000
Via dei Carraresi, Municipio Roma XII, Roma, Lazio, 00164, Italia
Vendita
€243.000



















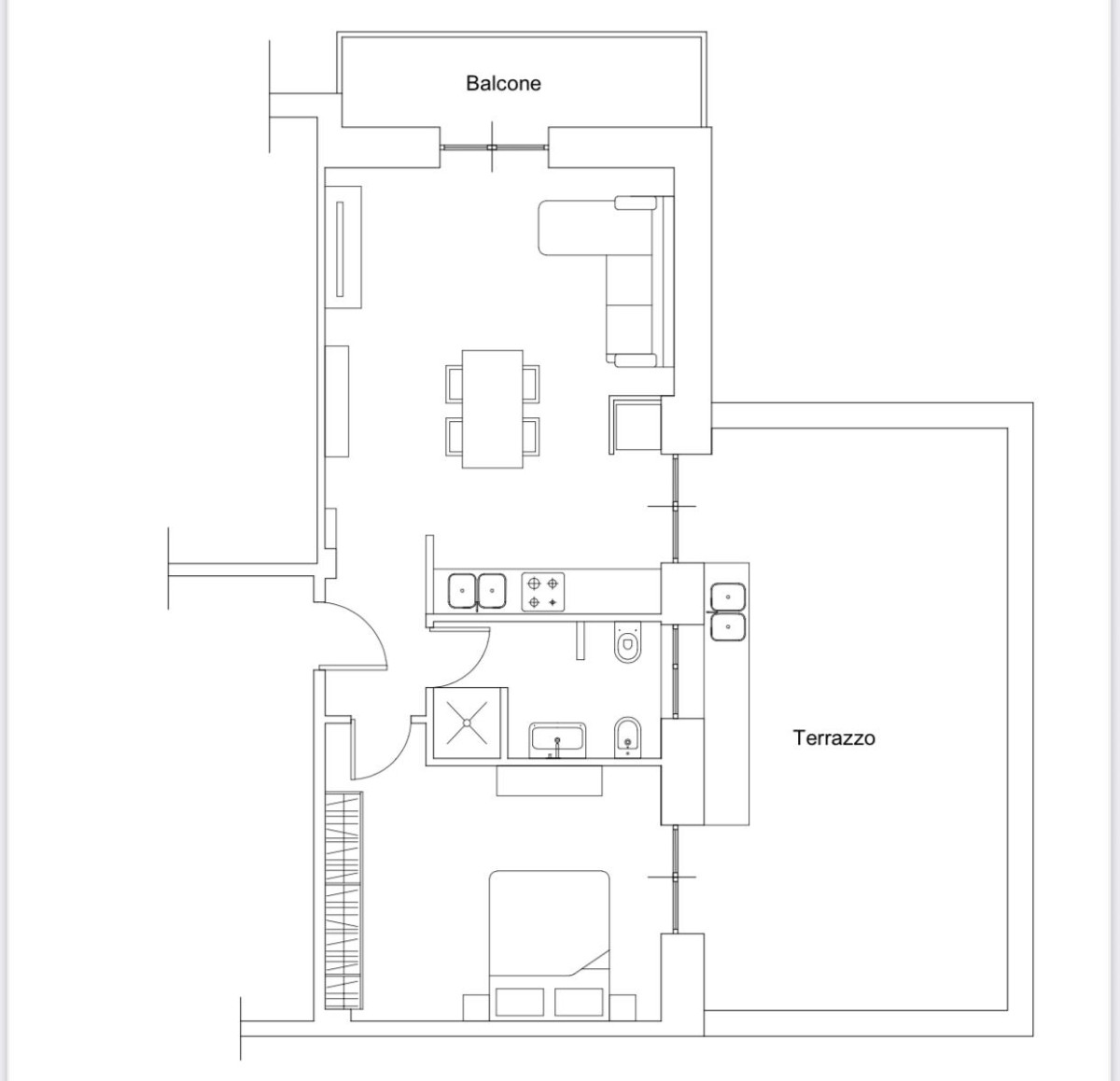
Appartamento con ampio terrazzo in vendita a Roma – Via dei Carraresi 18
In Via dei Carraresi traversa tranquilla di Via di Bravetta proponiamo in vendita un delizioso appartamento di 63 m² situato al piano terra di una palazzina a cortina recentemente ristrutturata.
L’immobile si presenta in ottimo stato di manutenzione e si compone di:
Prezzo richiesto: €243.000
Spese condominiali: €41 mensili
Classe Energetica: D
L’appartamento è dotato di porta blindata, infissi in alluminio anodizzato con doppio vetro, tapparelle elettriche, grate di sicurezza, climatizzatore, riscaldamento centralizzato con contabilizzatore di calore, e caldaia a gas Marca Rinnai per l’acqua calda. Sul terrazzo è inoltre presente un lavabo con zona lavanderia.
Grazie all’esposizione sud-ovest, l’abitazione gode di ottima luminosità durante tutto il giorno.
Ideale per giovani coppie, single o per chi desidera un’abitazione con un grande spazio esterno vivibile.
Posizione e servizi:
L’immobile si trova nella parte centrale del quartiere Bravetta, in una zona ben servita da tutti i principali servizi: supermercati, mercato rionale, scuole, bar, farmacie, negozi e ristoranti. È inoltre ben collegato dai mezzi pubblici (Linee H, 889, 881, N98, 892, 98), che permettono di spostarsi agevolmente in città.
A pochi minuti si trova il Parco di Villa Pamphili, una delle aree verdi più grandi di Roma, perfetta per chi ama la natura e il relax.
Contattaci subito per avere maggiori informazioni o per prenotare una visita.
Ufficio vendite: Via di Bravetta 190 – 00164 Roma
Per informazioni e visite: 06.66. 63.738 – 348.388. 8273
(Le informazioni presenti in questo annuncio non costituiscono elemento contrattuale. )
Hai bisogno di un mutuo? Richiedi una consulenza gratuita presso il nostro ufficio! Grazie alle nostre convenzioni con i principali istituti di credito, ti aiuteremo a trovare le migliori condizioni per l’acquisto della tua casa.
Quanto vale il tuo immobile? Contattaci per una valutazione gratuita e scopri il valore della tua casa!
Chi siamo, una società specializzata nella vendita e locazione di immobili, offrendo servizi di consulenza e valore aggiunto dedicati al mercato immobiliare. Affidati alla nostra esperienza per un acquisto sicuro e senza sorprese!
I nostri uffici sono aperti dal:
lunedì al venerdì dalle 9.00 alle 13.00 / 15.00 alle 19.00
sabato dalle 9.00 alle 13.00.
Trilocale in vendita in via della Pisana, 401 Roma APPARTAMENTO…
€199.000
Proponiamo in Via G. Perego – zona Mostacciano appartamento A/10…
€250.000 €299.000
Dove Siamo: Via di Bravetta, 190, Roma
Tel: 06 666 3738
© 2024 Roma-immobiliare.it Tutti i diritti riservati.
Sito Web realizzato da MB.it
Chatta con noi!