Ampio bilocale in Via dei Carraresi 10 – Roma
***VENDUTO*** Ampio bilocale in Via dei Carraresi 10 – Roma…
€219.000
Terracina, Latina, Lazio, Italia
Vendita
€259.000































CENTRO STORICO DI TERRACINA – APPARTAMENTO PANORAMICO SU DUE LIVELLI CON TERRAZZA VISTA MARE E STORIA
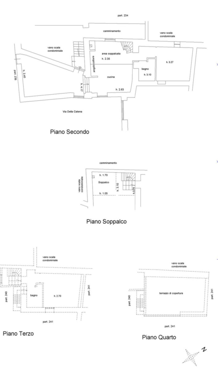
Appartamento in Vendita, Via della Catena – Terracina
Nel cuore del Centro Storico di Terracina, a pochi passi da ristoranti tipici, botteghe artigiane e dai principali luoghi di interesse come la maestosa Cattedrale di San Cesareo e i resti dell’antico Teatro Romano proponiamo in vendita un affascinante appartamento su due livelli con terrazza panoramica, un autentico rifugio dove la storia incontra il mare.
Terracina è una città di mare dal fascino millenario, celebre per le sue spiagge dorate, il porto turistico e i tramonti sul mare Tirreno. Un luogo dove la vita scorre lenta e piacevole, tra il profumo di salsedine e le pietre antiche del borgo.
L’immobile è situato all’interno di una palazzina storica in pietra e intonaco, perfettamente integrata nel paesaggio urbano e ricca di autenticità. Un contesto unico, che regala un’atmosfera calda e accogliente, con una vista incantevole che spazia sui tetti del centro e sul mare all’orizzonte.
Posto al secondo piano, l’appartamento si sviluppa su una superficie di circa ___ mq e si compone di:
Una scala interna conduce al livello superiore, dove troviamo:
Grazie alla posizione privilegiata e al suo fascino autentico, questa proprietà è ideale come seconda casa al mare o residenza di charme per le vacanze.
Perfetta anche come investimento turistico (B&B o casa vacanze), data la grande richiesta di soggiorni nel centro storico di Terracina, una delle località più amate del litorale laziale.A
Un luogo unico dove mare, storia e bellezza convivono in perfetta armonia.
Contattaci per maggiori informazioni o per prenotare una visita esclusiva.
Contattaci subito per avere maggiori informazioni o per prenotare una visita.
Ufficio vendite: Via di Bravetta 190 – 00164 Roma
Per informazioni e visite: – 348.388. 8273
(Le informazioni presenti in questo annuncio non costituiscono elemento contrattuale. )
Hai bisogno di un mutuo? Richiedi una consulenza gratuita presso il nostro ufficio! Grazie alle nostre convenzioni con i principali istituti di credito, ti aiuteremo a trovare le migliori condizioni per l’acquisto della tua casa.
Quanto vale il tuo immobile? Contattaci per una valutazione gratuita e scopri il valore della tua casa!
Chi siamo, una società specializzata nella vendita e locazione di immobili, offrendo servizi di consulenza e valore aggiunto dedicati al mercato immobiliare. Affidati alla nostra esperienza per un acquisto sicuro e senza sorprese!
I nostri uffici sono aperti dal:
lunedì al venerdì dalle 9.00 alle 13.00 / 15.00 alle 19.00
sabato dalle 9.00 alle 13.00.
***VENDUTO*** Ampio bilocale in Via dei Carraresi 10 – Roma…
€219.000
***VENDUTO*** Attico in vendita in Via Vincenzo Sartori, 76 –…
€175.000
Dove Siamo: Via di Bravetta, 190, Roma
Tel: 06 666 3738
© 2024 Roma-immobiliare.it Tutti i diritti riservati.
Sito Web realizzato da MB.it
Chatta con noi!